
リビングイン階段で広く、自然とコミュニケーションが増えるお家です★☆さらに2階には物干しスペース付き(^^)/
最終更新日:2026年05月08日
- 価 格
- 2,680万円
- 間取り
- 4LDK+物干しスペース
- 所在地
- 八戸市根城7丁目9-7 (A棟)
- 土地面積
- 233.62㎡(70.67坪)
- 交 通
- (市営)総合福祉会館前 徒歩5分
| 取引種目 |
売買建物 |
問合せNo |
|
取引態様 |
売主 |
| コメント |
リビングイン階段で広く、自然とコミュニケーションが増えるお家です★☆さらに2階には物干しスペース付き(^^)/ |
| 所在地 |
八戸市根城7丁目9-7 (A棟) |
| 価 格 |
2,680万円 |
| 間取り |
4LDK+物干しスペース |
| 交 通 |
(市営)総合福祉会館前 徒歩5分 |
| 土地面積 |
233.62㎡(70.67坪) |
他、私道面積 |
|
| 建物構造 |
木造2階建て |
建物面積 |
115.30㎡(34.87坪) |
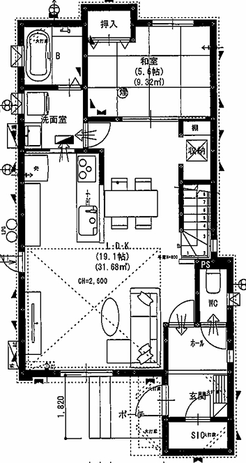
| 間取内訳 |
1階:LDK(19.1帖)和室(5.6帖) 2階:洋室(8帖)洋室(6帖)洋室(6帖)WIC(3帖)物干しスペース |
| 接道状況 |
南東側 約7.7m |
| 築年月日 |
令和8年4月 |
現 況 |
建築中 |
| 引渡し時期 |
建築終了後 |
駐車場 |
3台可 |
| 土地権利 |
所有権 |
地 目 |
宅地 |
| 都市計画 |
市街化区域 |
用途地域 |
第一種低層住居専用地域 |
| 建ペイ率(%) |
50 |
容積率(%) |
80 |
| 学区(小) |
江南小学校 |
学区(中) |
根城中学校 |
| ガ ス |
プロパン |
トイレ |
下水道 |
| 備 考 |
・エアコン・TVアンテナ 付いてます。 ・水道加入金もいただきません。 ・網戸全箇所、取付含みます。 ・カーテンレール、レースカーテンもついてます。 ・IHコンロ、食器洗い乾燥機付きです。
【建築確認番号】 R07確認建セ青八戸第0344号 |
|
|
